Pihatuurin piharakennustehtaalla valmistettavat 70 mm:n pihavajat, hirsitalot, vajat, paviljongit, saunat, kesämökit, grillikodat ja puiset autotallit toimitetaan täydellisinä ovineen, ikkunoineen, lattioineen, kiinnitystarvikkeineen ja asennusohjeineen, joten piharakennuksen rakentaminen on helppoa ja aikaa säästävää.
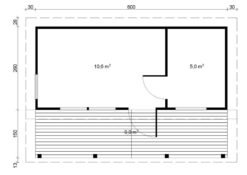
Seinäpaksuudeltaan tuotepiirustuksen mukaisesti 70 mm Pihatuuri-pihasauna sisältää:
Puumateriaalina on käytetty 100 % pohjoismaista laatukuusta
Erikoisliimapuusta valmistetut (8–12 %) ovet ja ikkunat.
Ruostumattomasta metallista valmistettu kynnyssarja
Avattavat lasi-ikkunat, sisältää helat
Lasiruudullinen ovi, sisältää helat
Löylyhuoneen karkaistussa lasiovessa on liimapuukarmit
Selkänojalliset leppälauteet ja porraspenkki
Kyllästetyt puiset perustuspuut
28 mm paksu ponttilautalattia
Vesikouru saunan lattiassa
Pihasaunan katto on kaksoislaudoitettu, joten siihen voidaan lisätä 50 mm:n eristys (eristysmateriaali ei sisälly hintaan)
Katto on ponttilautaa
Kierretangot
Kiinnitystarvikkeet (naulat, ruuvit)
Asennuspiirustukset ja -suunnitelmat
Hinnat ovat voimassa Pihatuurin tehtaan varastossa ja sisältävät arvonlisäveron.
Hinnat eivät sisällä kuljetusta.









