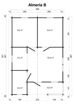
Höylähirsimökki Almeria B 50 m2

Hintaluokka: 16 990,00 € - 19 430,00 €

Rahti Manner-Suomeen: 590€

Hintaan sisältyy lasiruudullinen liimapuuovi ja lasi-ikkunat, ruostumattomasta teräksestä valmistettu kynnyspaketti, kyllästetyt perustuspuut, kiinnitystarvikkeet ja asennusohjeet. Hinta ei sisällä kuljetusta ja katemateriaalia.

Ulkomitat: 575 x 867 cm
Hirsivahvuus: 70 mm
Tuotetunnus (SKU): m111_153 Osasto: Avainsana tuotteelle