Autotalli Caravan 70 mm

Alkuperäinen hinta oli: 12 690,00 €.Nykyinen hinta on: 12 570,00 €.

Rahti Manner-Suomeen: 390€

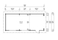
Hintaan sisältyy lasiruudullinen liimapuuovi ja lasi-ikkunat, kyllästetyt perustuspuut, kiinnitystarvikkeet ja asennusohjeet. Hinta ei sisällä kuljetusta ja katemateriaalia.

Tuotteen perushinta
Lisävalintojen hinta
Yhteensä
Tuotetunnus (SKU): 111_785.0 Osastot: , ,