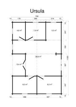
Höylähirsimökki Ursula 68 m2

Hintaluokka: 22 870,00 € - 26 130,00 €

Rahti Manner-Suomeen: 590€

Hintaan sisältyy liimapuukarmiset kaksiosaiset lasi-ikkunat, sisäovet, ruostumattomasta teräksestä valmistettu kynnyspaketti, kyllästetyt perustuspuut, kiinnitystarvikkeet ja asennusohjeet. Hinta ei sisällä kuljetusta ja katemateriaalia.

Ulkomitat: 1000 x 680 cm
Hirsivahvuus: 70 mm
Tuotetunnus (SKU): m111_196 Osasto: Avainsana tuotteelle